

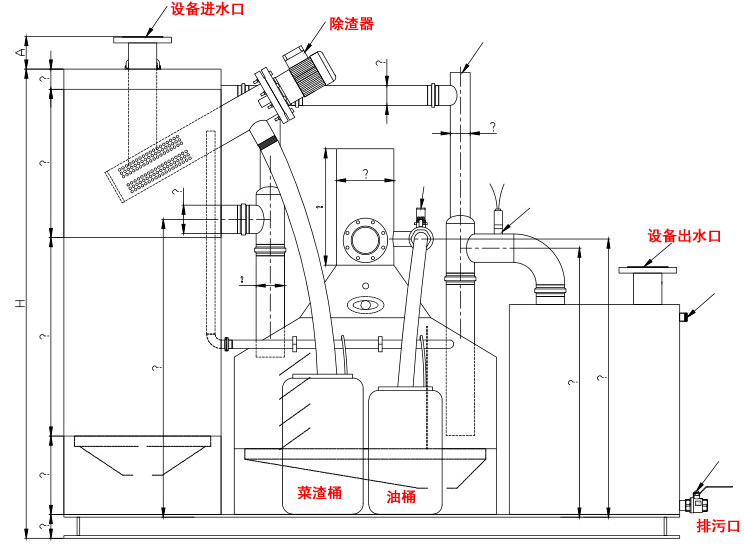
全自動油水分離器,隔油提升一體化設備安裝原理圖

全自動一體化油水分離器簡介
全自動一體化油水分離器是中贏供水在普通的油水分離設備的基礎上,結合市場需求進行的產品升級,全自動一體化油水分離器具有自動除渣、油水自動分離、自動刮油排油、恒溫加熱裝置、污水提升、全自動智能化控制系統,操作簡便,運行安全穩定。
全自動一體化油水分離器具備雜物分離、油水分離和污水提升三個主要功能區,餐飲廢水由進水口進入除渣集泥排泥區,廢水所含固態殘渣由除渣機自動隔離排放至殘渣收集桶內。含油廢水繼續流入到油水分離區,經過水流導向裝置、平流物理分層輔以曝氣跟恒溫加熱裝置,促使油脂從油水中分離上浮至錐形集油區,當油脂到達一定高度位置,由自動刮油裝置將上浮油脂自動排放至油脂收集桶內,并配以手動液壓放油閥,亦可排出浮油。經油水分離區處理后污水由導流裝置進入提升區,當提升箱內液位達到設定值時,提升泵自動工作將箱內污水提升至市政管網。
全自動油水分離器,隔油提升一體化設備工作原理

全自動油水分離器主要由進水口、除渣器、雜物分離倉箱、細微顆粒存儲區、排渣閥、油水分離區、儲油區、恒溫電加熱系統、攪拌系統、油窗視鏡、排油口、排空閥、液位控制系統、污水提升裝置等。全自動油水分離器工作原理為:含油廢水進入隔油器后,通過特殊設計的鋸齒堰結構,將雜物攔截至儲渣區定期打開閥門排出雜物。含油廢水通過第一倉溢流(降低水的流速)進第二倉油水分離倉,油水分離倉為全密閉非對稱結構,廢水在油水分離區停留大于4分鐘以上,油脂將自動收集至廢油存儲,用戶可通過設置在費油區域的油窗視鏡觀察廢油倉的油位情況,如油位較高可手動打開排油閥門將廢油排至設備外部廢有桶內;設備廢油倉設有自動恒溫裝置,防止溫度較低油脂結塊,以提高排油效率;設備廢油倉還設有攪拌裝置防止用戶長時間不排油,油脂板結無法排出。設備帶有自動提升功能,當設備內廢水水位到達設備的低液位時,單臺泵啟動排水,到達高點時兩臺泵同時啟動排水,到達最頂點時設備發出報警以提醒用戶,污水超出設備設計處理能力2倍以上。
1.智能一體化程度高:









共有2條評論
每小時處理20噸的多少錢一臺?
電聯報價給你
油水分離效果好,安裝也較方便!我們餐廳用的還可以.
謝謝支持